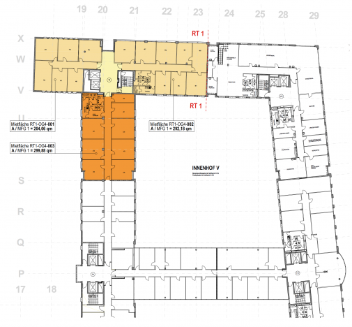
Maternistr. 4. OG (RT1) - 496 bis 796 qm
- 2 Flächen - getrennt oder zusammen anmietbar
- Fläche 1: ca. 496 qm
- Fläche 2: ca. 300 qm
Bei Interesse können Sie uns gern anfragen. Nutzen Sie dafür auch unser Online-Kontaktformular (weiter unten).
Muster-Ausstattung für Renovierung nach Ihren Vorstellungen
Ob Sie in Einzel-, Großraum- oder Etagenbüros Ihrer Kreativität freien Lauf lassen möchten – mit unseren flexiblen Nutzungskonzepten moderner Büroräume, bieten wir Ihnen den nötigen Raum und das inspirierende Umfeld, Ihre Ziele zu verwirklichen. Die hochwertigen und individuell gestaltbaren Nutzflächen in unserem Haus lassen keine Wünsche offen.
Im Rahmen der Renovierung Ihrer Wunschfläsche können wir Ihre Vorstellungen zielgerichtet umsetzen.
Individuelle Mieterausbauplanung & Vermietung & Management
Für Ihre Fragen zur Gestaltung und Planung Ihrer Mietfläche, sowie generell bezüglich Vermietung oder Management des WTC Dresden stehen wir Ihnen gern zur Verfügung:
World Trade Center Dresden - Management
RECO Immobilien- und Verwaltungsgesellschaft mbH
Jürgen Rees, Manuel Rees und Anett Richter
E-Mail: info@wtc-dresden.de
Tel.: +49 (0) 351 - 2054 2035
Fax: +49 (0) 351 - 2054 2038
